
540.000 euros. Es la cantidad que está pidiendo una inmobiliaria madrileña para que nuevos inversores participen “en la propiedad de un elemento arquitectónico único y exclusivo, el Castillo de Galve de Sorbe”, ubicado en esta pequeña localidad de Guadalajara. Los dueños del castillo, los hermanos Calle, quieren reconvertirlo en una hospedería con restaurante y habitaciones, y pasar así página del pasado más reciente: su padre dejó el castillo para que una secta con la que simpatizaba, Nueva Acrópolis, realizara ciertos rituales nazis. Eso fue hace muchos años. Ahora el castillo se oferta en Idealista. “Es una oportunidad única de participar y desarrollar un proyecto en un elemento único, emblemático y exclusivo. Buscamos profesional o empresa del sector turístico con capacidad para liderar la fase final de adecuación y gestión del inmueble como establecimiento de alto valor patrimonial”, señala el anuncio publicado.
Un portavoz de Sefidón Inmobiliaria señala a Infobae que “estamos recibiendo muchas llamadas”, y que ya ha trabajado con la familia que busca socios inversores, ya que el patriarca, Enrique Calle Donoso, ha sido propietario de varios castillos en España. Este en concreto, también conocido como Castillo de los Zúñiga, es Bien de Interés Cultural (BIC). Fue construido en 1468 por la familia López de Estúñiga, que en el siglo XVI se lo vendió a Ana de la Cerda, viuda de Diego Hurtado de Mendoza, poeta y diplomático. En el siglo XVII pasó a la casa de los duques de Alba. En 1973, el castillo pasó a ser propiedad del Estado y éste se deshizo de él mediante subasta pública. Tras ofrecérselo al Ayuntamiento de Galve, que lo rechazó, Hacienda lo subastó y fue adjudicado por 1,4 millones de pesetas a Carlos Junqueras de Miquel, un empresario de origen catalán.

Junqueras se lo acabó vendiendo a Enrique Calle Donoso, que también se hizo por esa época con otro castillo de la zona, el de Riba de Santiuste (cerca de Sigüenza). Pagó unas 130.000 pesetas por cada uno de ellos. Una información publicada en la revista ‘Tiempo’ en mayo de 1985 sitúa a Calle como simpatizante de una secta internacional bautizada como Nueva Acrópolis, y afirmaba que Calle (que tenía el apodo de ‘el duende’) cedía sus castillos para que este curioso grupo organizara actos y cursillos “con objetivos nazis”. Lo cierto es que Calle intentó realizar varias obras de reconstrucción en uno de los muros exteriores adosados a la Torre del Homenaje, pero también utilizó materiales inadecuados y emprendió la construcción de una vivienda en el interior, sin respetar las características originales del edificio.
Una ley que obliga a conservarlo
A principios del año 2011, la Junta de Castilla-La Mancha decidió incoar un expediente de sanción al dueño, que acabó en el cajón de los olvidos. “El propietario se enfadó y el castillo quedó abandonado. Nosotros creamos en 2006 la Asociación Cultural Castillo de Galve para intentar recuperar este patrimonio tan importante”, señala Raúl Conde, su portavoz. El artículo 23 de la Ley de Patrimonio Histórico de Castilla-La Mancha regula que “los propietarios, poseedores y demás titulares de derechos reales sobre bienes integrantes del Patrimonio Cultural de Castilla-La Mancha están obligados a conservarlos, cuidarlos y protegerlos adecuadamente para asegurar su integridad y evitar su pérdida, deterioro o destrucción”.

Han pasado 20 años. Enrique Calle falleció en 2016 y el castillo es gestionado por una empresa que dirigen sus hijos, de nombre ‘CastilGalve SL’. Entre 2016 y 2019, los dueños asumieron varios trabajos de rehabilitación y limpieza, apoyados por los vecinos. Desde el año 2020, esta sociedad intenta poner en marcha un nuevo proyecto, una hospedería rural. Tras un largo proceso administrativo, el plan entró en nueva fase en mayo de 2025, cuando el Ayuntamiento de Galve de Sorbe anunció la exposición pública del mismo. “Es verdad que nos han presentado el proyecto, falta el informe de impacto ambiental. Patrimonio ya lo ha visitado”, explica Francisco Javier López Lorenzo, el alcalde de Galve de Sorbe (PP). “Hay que hacer un aparcamiento y llevar los suministros, agua y luz. Pero si sale adelante, generará empleo y dará vida turística a la zona”, sentencia.
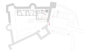
La futura hospedería ocuparía un ala en forma de ‘L’ dentro del castillo, una estructura de 1.240 metros cuadrados. Esta sección, situada en la zona sur y próxima a la entrada principal, se distribuirá en dos plantas. En la baja, se ubicarán la recepción, una cafetería con comedor, aseos (incluido uno adaptado), lavandería y un espacio para gestión de residuos, además de dos apartamentos con uno y dos dormitorios dobles, respectivamente. La planta superior albergará otros dos apartamentos similares, un estudio, una habitación adaptada y otra doble, sumando un total de siete unidades de alojamiento. Un ascensor comunicará ambos niveles.

El proyecto no se limita únicamente a la habilitación de una hospedería. Los planes también contemplan la asistencia puntual de visitantes externos y la creación de un espacio de terraza anexo al bar, lo que significaría un incremento significativo en la capacidad de ocupación del conjunto hasta las 134 personas de ocupación máxima. Este diario ha intentado, sin éxito, hablar con los propietarios del castillo. La asociación cultural reclama que, como Bien de Interés Cultural, el castillo se abra al público de forma gratuita cuatro días al mes, en cumplimiento de la ley.
La asociación ya no existe, pero su portavoz Raúl Conde recuerda que el castillo “no es un inmueble cualquiera y que los propietarios tienen unas obligaciones. Hubo en su momento la posibilidad de expropiar, pero la Junta no quiso porque implicaba un trámite judicial largo, y el Ayuntamiento no lo veía tampoco. Tampoco la propiedad quiso nunca ceder su uso. Nos quejamos al Defensor del Pueblo y llegó el expediente de la Junta”. La sanción fue finalmente de 73.000 euros. “Los propietarios limpiaron el castillo. Se ha recuperado el aljibe, se ha techado la Torre del Homenaje y se llevó a cabo un trabajo arqueológico. Está mejor, sería visitable, pero incumplen la ley porque no se puede visitar”, sentencia.
Últimas Noticias
La reina Letizia recicla su traje de dos piezas y deslumbra en Lleida: el mensaje que esconde su estilismo y su guiño a Cataluña
La esposa de Felipe VI ha formado parte la reunión de la Associació de Dones Empresàries de Lleida y la posterior entrega de los premios Ap!Lleida

“Los padres no expresan las emociones de la misma manera”: un psicólogo explica las diferencias entre la maternidad y la paternidad
El psicólogo Alfonso Navarro, especializado en adolescencia y familia, explica que los progenitores tienen formas distintas de afrontar los conflictos con los hijos y, lejos de ser un problema, puede resultar positivo

Madrid recurrirá el decreto de sanidad universal para los migrantes irregulares: “Estoy en contra del turismo sanitario”
La presidenta Isabel Díaz Ayuso considera que el Gobierno central quiere “reventar” los servicios públicos madrileños con esta norma

Reino Unido frena la operación secreta de un submarino ruso en sus aguas y advierte a Putin de “graves consecuencias” si amenaza a su infraestructura
Los británicos y sus aliados desplegaron barcos, aviones y helicópteros para rastrear y vigilar los movimientos de buques y submarinos rusos en zonas clave

Alejandra Rubio rescata una imagen de María Teresa Campos para hacer frente a las críticas por su libro: “Mi abuela leyendo mi primera columna”
La hija de Terelu Campos se encuentra en el centro de los focos tras revelar que compró su primer ordenador con 26 años, lo que ha abierto un debate sobre cómo logró escribir su primera novela sin este dispositivo


